PIÙ Architecte
Camille SÉJOURNÉ
Marie BARDINET
PIÙ Architecte
Camille SÉJOURNÉ
Marie BARDINET
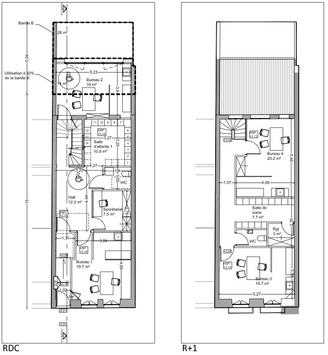
cabinet médical JRH
Réhabilitation d'un cabinet médical - Bordeaux (33) étude
↑
Back to Top