PIÙ Architecte
Camille SÉJOURNÉ
Marie BARDINET
PIÙ Architecte
Camille SÉJOURNÉ
Marie BARDINET
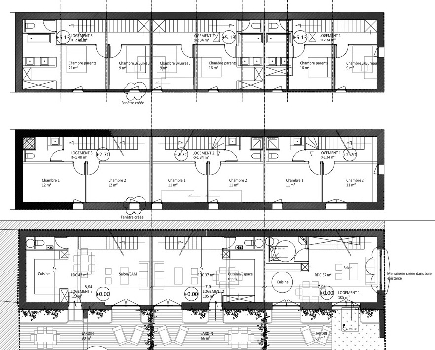
3 logements LD
réhabilitation d'un ancien bâtiment de la Poste - Libourne 2020
↑
Back to Top